Osiedle na ulicy Dębowej mieści się w cichej, spokojnej i urokliwej miejscowości Łuczyce. Obok doskonałych warunków do wypoczynku, jednym z najważniejszych atutów tej lokalizacji jest bliskość Krakowa. Do północnych dzielnic miasta możesz dotrzeć samochodem w ok. 15 min lub pociągiem w ok. 17 min (ze stacji Łuczyce). Podróżowanie po całym regionie ułatwia również niedaleka odległość od wjazdu na budowaną obwodnicę S7.
Osiedle na ulicy Dębowej znajduje się na widokowej działce w niezwykle spokojnej i zielonej okolicy – sąsiaduje z Lasem Łuczyckim i ścieżkami spacerowymi, zapewniającymi szerokie możliwości spędzania czasu na łonie natury. Lokalizacja oferuje Ci również wygodny dostęp do wszystkich przydatnych na co dzień punktów – od przedszkola i szkoły, poprzez przystanki MPK i PKP, aż po popularne sklepy.
Osiedle na ulicy Dębowej to kameralna inwestycja, obejmująca cztery domy jednorodzinne wolnostojące w nowoczesnej zabudowie. Budynki zostały wykonane z najwyższej jakości materiałów. Znajdują się przy utwardzonej drodze wewnętrznej, co zapewni Ci maksymalne bezpieczeństwo. Domy w swojej bryle mają jednostanowiskowy garaż, a przed nim dodatkowe miejsce postojowe, więc wygodnie zaparkujesz dwa samochody.
Każdy dom ma prywatną przestrzeń, która umożliwia relaks na świeżym powietrzu, blisko natury. Z salonu, przez bardzo duże okna HS, będziesz wychodzić na taras i do swojego ogrodu – idealnego miejsca na wypoczynek, pielęgnowanie ulubionych roślin, zabawy z dziećmi czy spotkania z przyjaciółmi.
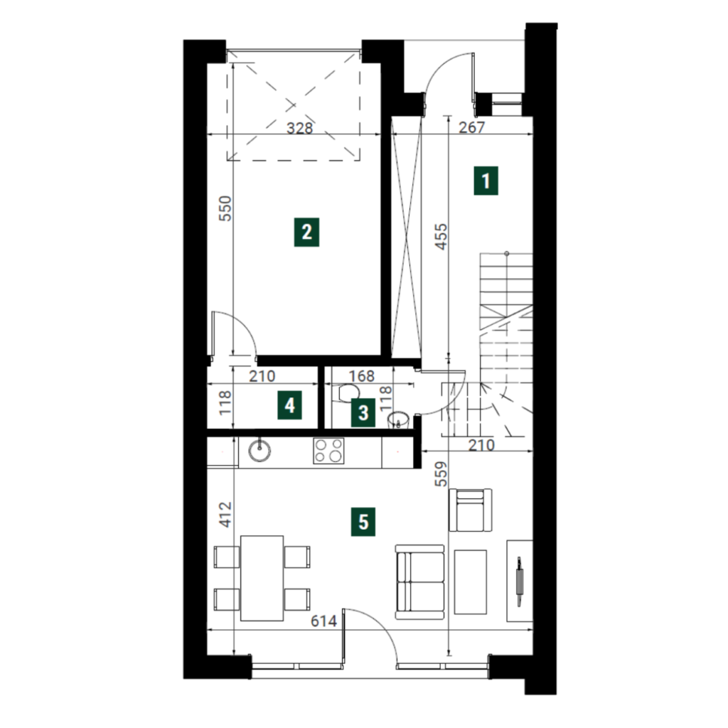
Każdy dom wyróżnia się bardzo funkcjonalnym układem pomieszczeń i ustawnymi wnętrzami. Od progu przywita Cię nowoczesna, przezierna klatka schodowa z garderobą, a tuż za nią przestronny salon, który stanowi serce każdego z tych domów. Wyróżniają go duże przeszklenia, pozwalające podziwiać zieleń ogrodu. Pełnowymiarowe poddasze użytkowe to m.in. 4 duże sypialnie, które możesz zaaranżować w dowolny sposób.
| Dom .Dom | Typ | PtPiętro | Pok.Pokoje | Pow..Pow. | DziałkaPow. działki | ExtraBalkon/Taras | BudynekBudynek | DostępnośćDostępność | Cena | Plan | |
|---|---|---|---|---|---|---|---|---|---|---|---|
| A | A i C | 0,1 | 3 | 112,50m2 | 378,00m2 | Ogród | A | Sprzedane |
NR:
Dom :
A
Pokoje:
3
Pow.:
Pow.:
112,50m2
Działka:
378,00m2
Budynek:
A
Sprzedane
--
|
||
| B | B i D | 0 | 5 | 112,50m2 | 367,00m2 | Brak | B | Sprzedane | 870000,00 zł |
NR:
Dom :
B
Pokoje:
5
Pow.:
Pow.:
112,50m2
Działka:
367,00m2
Budynek:
B
Sprzedane
--
|
|
| D | B i D | 0,1 | 3 | 112,50m2 | 383,00m2 | Ogród | D | Sprzedane |
NR:
Dom :
D
Pokoje:
3
Pow.:
Pow.:
112,50m2
Działka:
383,00m2
Budynek:
D
Sprzedane
--
|
||
| C | A i C | 0,1 | 3 | 112,50m2 | 370,00m2 | Ogród | C | Sprzedane |
NR:
Dom :
C
Pokoje:
3
Pow.:
Pow.:
112,50m2
Działka:
370,00m2
Budynek:
C
Sprzedane
--
|
Nasza rodzinna firma, założona w 2005 roku, od samego początku działa lokalnie. Dzięki temu możemy zapewnić klientom nie tylko doskonały produkt, ale także zaangażowanie na każdym etapie procesu sprzedaży. Naszą misją jest tworzenie kameralnych osiedli, obejmujących nowoczesne domy, które gwarantują maksymalny komfort wszystkim mieszkańcom.


















